参考均价22964 元/尺 847万/套(起)
免费专车看房
免费专车

香港房产网 专为买房人服务

更多房源 精准匹配 免费专车 好房一趟看完

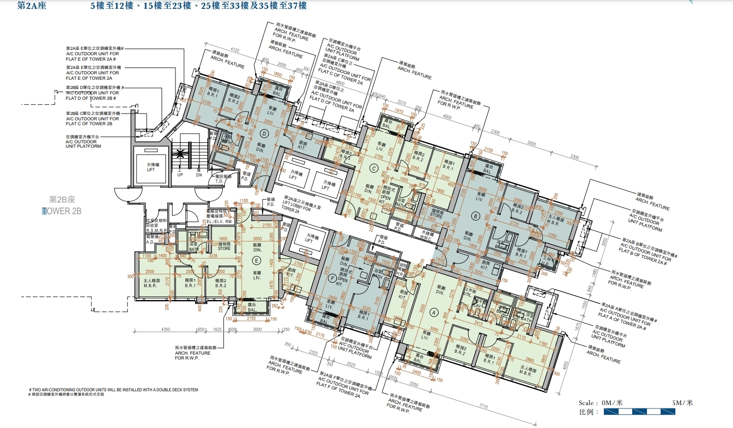
户型图
户型图
楼盘动态
楼盘详情

 

楼盘名称: Monaco
期数: Monaco第一期
地址 : 九龙启德沐泰街12号
户型 : 开放示、1房1厅,2房2厅,3房2厅
面积 : 标准单位:280至1394平方尺
层数 : 38楼(2A座,2B座)
发展商 : 香港会德丰地产
总座数 : 2幢
单位总数 : 399单位
楼层高度 : 约3.2米
管理公司 : 香港夏利文物業管理有限公司
预计交楼日期 2022年12月

 

优惠付款
Monaco优惠付款:(由于价单随时改动,请以发展商最新价单为准或来电索取,以下仅供参考) 

Monaco 付款方式:

一,180天即供付款方式:

      1. 签署临时买卖合约时付5%
      2. 签署临时买卖合后180天内付95%(照订价-5%)

二,180天轻松置业付款方式:

      1. 180天轻松置业一按贷款付款方式划 (照订价-4%)
      2. 180天灵活一按贷款付款方式 (照订价-4%)
      3. 180 天备用二按贷款付款方式 (照订价-4%)

三,投资梦想家居 360 天付款方式:

      1. 投资梦想家居 360 天现金优惠付款方式 (照订价-3.5%)
      2. 投资梦想家居 360 天轻松置业一按贷款付款方式 (照订价-2.5%)
      3. 投资梦想家居 360 天灵活一按贷款付款方式 (照订价-2.5%)
      4. 投资梦想家居 360 天备用二按贷款付款方式 (照订价-2.5%)

三,灵活「置业易」480天付款方式:

      1. 灵活「置业易」480天付款方式 (照订价-3%)
      2. 灵活「置业易」480天备用二按贷款付款方式 (照订价-2%)

四,建筑期付款方式:

      1. 建筑期付款方式 (照订价-1.5%)
      2. 建筑期备用二按贷款付款方式 (照订价-0.5%)

Monaco折扣优惠:

      • 会员优惠:Club Wheelock会员优惠可获1%订价折扣优惠。
      • Wheelock LivingClub Wheelock会员优惠在签署臨时合约当日,买方如属「Club Wheelock」会员,可获1%订价折扣优惠。
      • “Wheelock Living” 脸书页面优惠 : 可获1%折扣优惠。
      • 明日启德置业优惠:                         可获1%折扣优惠。
      • KAI TAK HARBOUR临海生活置业:可获1%折扣优惠。
      • 启德潜力置业优惠:                         可获1%折扣优惠。
      • 新婚”启”航置业优惠:                       可获1%折扣优惠。
      • 印花税优惠:                                    可获8.5%折扣优惠。

以上仅共参考,所有折扣最高约20.5%,请以实际为准!

更多相关

为您推荐